
| 罐下采样器 加入时间:2014-12-26 8:52:32 点击:次 |
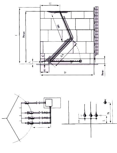
一、简介: 罐下采样器是指用于采集油品试样的罐下采样设施,包括设在罐内的采样管和附件及罐外部分(包括连接管道、泵和阀门等)。此种采样器是为了满足油品采样不上罐顶而产生的“自动”或“半自动”的设施。罐下采样器主要由上采样管、中采样管、下采样管、浮筒浮球)、柔性接管、手动泵、球代、固定架、铺助支撑。 二、特点: 1、适用于汽油、煤油、柴油、喷气燃料、石脑油和苯类等轻质液体石油产品油罐的油品采样。 2、对罐内油品的三个不同高度点进行采样,采样点分别于液位的六分之五,二分之一,六分之一(或距罐底250mm)外。 3、主体结构多为三根采样管及一根支撑管(支撑管也可是浮动出液装置的浮管等)。 4、采用该种罐下采样器的实际采样点误差与设计误差不超过5%。 5、采样爱惜通径多不大于20mm。 6、节省采样时间,提高了工作效率。 使用此罐下采样器,可减少静电效应的危险。 三、材质: 介质为喷气燃料时,采样管材质选用不锈钢或铝合金,无特殊要求时,采样管的材质可选用碳钢。
|
| 上一页:氧气阻火管 下一页:SG视镜 |
| [ 其它相关文章 ] |